Govt. Reg. No. 191585
bhangal sundarbasti 10.1 ana land
budhanilkantha 18 ana 55 lakhs per ana
Ghar Jagga Bazar

Land on Sale at Bhaisepati Magargaun

GJBLOS 3642 Updated November 22, 2025 19:27:00 253 views Land Area: 0-6-2-0

Rs. 50,00,000 per ana

Mortgage Calculator

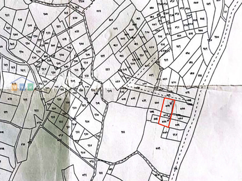
very well shaped 0-6-2-0 (206.65 sqrmt) residential plotted land adjoining with 18 feet road access facing north with 32 feet mohada(frontage) 70 feet length perfect land in housing colony, 200 mtrs south from pipal boat new ministers residence at Bhaisepati Magargaun, Shikali marg, Lalitpur is on sale.

Property Details

Property Owner: GJBLOS 3642
Property Code: GJBLOS 3642
Land Area: 0-6-2-0
Property Location: Bhaisepati Magargaun
Agents Name: www.gharjaggabazar.com
Seller Address: Bhaisepati Magargaun
District: Lalitpur
Province: Bagmati Province
Phone No.: 014963456, (10-17 hours) email: sales@gharjaggabazar.com
Mobile No.: 9803421055, 9851362391, 9813998554 (viber whats app 9803421055, gjb-sales officers)
Price: Rs 50,00,000
Type: Land on Sale - Residential
best suitable for single bungalow house as per vastu principle.

(first listed on: october 15, 2025)

Remarks: price is almost fixed and final. best for single plot for single house only.

Want to visit this property? Please fill up enquiry form and submit. Or email us at sales@gharjaggabazar.com, info@gharjaggabazar.com, gharjaggabazar@gmail.com

Similar Properties

Testimonials
Mrs Y. Sherpa

Landlord

Ghar jagga bazar real state of Bantawaji provided us a good...

View Count: 1228

P. Subedi

Property Seller

I listed my house in www.gharjaggabazar.com website in...

View Count: 840

R.C. Pun

Property Buyer

I was searching to buy a house within my criteria and budget...

View Count: 1156

Enquiry about this property
Please enter your name.
Please enter your valid email address.
Please enter your valid phone number.

I confirm that I have read and accept to the Privacy Policy and Personal Data Processing Guidelines.

Contact Agent/Agency

Agent/Agency Name
www.gharjaggabazar.com

Phone No.
014963456, (10-17 hours) email: sales@gharjaggabazar.com

Mobile No.
9803421055, 9851362391, 9813998554 (viber whats app 9803421055, gjb-sales officers)

Featured Building
About Us

The name as Ghar Jagga Bazar Realestate (P) Ltd., (in short form ‘GJBR’) domains www.gharjaggabazar.com, www.gharjaggabazaar.com, www.homelandbazaar.com its logo have been registered in the office of the company registrar (license no 191585, tax pan no 606683586) government of Nepal. Registered office located in Basundhara, Tokha municipality, Kathmandu, Nepal.

Read More
Contact Us
Basundhara, Kathmandu, Nepal
GPO Box: 6138
+977 01 4963456
+977 9818909311
+977 9851362391
+977 9813998554
info@gharjaggabazar.com

© 2009-2025. Ghar Jagga Bazar Real Estate Pvt. Ltd.

This page has been visited times since May 07, 2012
nilbarahi 12.2 ana land on sale ! 38 lakhs/ana